İkitelli Org. San. Bölg. Dolapdere San. Sitesi 12. Ada No.89 – 87 Başakşehir / İstanbul.
tr
Sitemize ürünler eklenme aşamasındadır.
Kurulduğumuz günden bugüne birçok ürünün satışını ve hizmetlerini sürdürmekteyiz. Hizmet verdiğimiz ürünler sitemize eklenme aşamasında olup bizi takip etmeye devam edin.
Ürünlerimiz

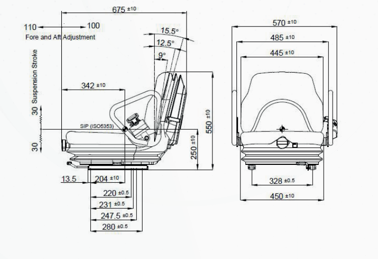
F140/MN60

MEKANİK SÜSPANSİYON
F140/MN60 FORKLİFT MALZEME TAŞIMA KOLTUKLARI
  • ÜRÜN KODU: F140/MN60
  • Manuel ağırlık ayarlı mekanik süspansiyon
  • İlgili standartlara göre emniyet kemeri sabitleme noktaları
  • İleri geri ayar kızak
  • Daha fazla konfor sağlamak için arkalık ayarı

Ürün Resimleri
Sıkça Sorulan Sorular
Ürüne kol dayama, emniyet kemeri, döner tabla vs özellikler takılabilir veya üründen çıkarılabilir mi?
Evet. Ürünlerimiz çoğunlukla tüm opsiyonlar koltuk üzerinde olacak şekilde katalog çekimi yapılmaktadır. Üründeki standart özellikleri ve ilave edilebilir opsiyonel özelliklerin bulunduğu tabloyu ürün görselleri arasında görebilirsiniz.
Kaplaması farklı renklerde deri veya kumaş döşeme olarak yapılabilir mi?
Evet. Farklı renklerde deri, vinleks döşeme yapılabilir olmakla birlikte opsiyonel olarak sunulan kumaş döşeme/kaplamada yapılabilmektedir.
Ürün aracımıza uyum sağlar mı?
Ürünlerimizi aracınızdaki mevcut koltuklarınızı baz alarak uyum sağlayacak şekilde üretilmektedir. Bazı marka model araçlarla %100 uyum sağlamakla birlilkte bazı araçlara ise, ek işlemler, tadilatlar, aparatlar yaparak aracınıza monte edebilirsiniz.
Mekanik, havalı, elektrikli havalı ürün farkı nedir?
Mekanik sistem ürünler herhangi bir kompresöre, havaya destek duymadan yay, makas, ve amortisör bileşenleriyle yaylanmaktadır.
Havalı sistem ürünler daha ergonomik için tasarlanmış, içerisinde körük, makas, amortisör bulunan harici kompresör destekli çalışan ürünler.
Elektrikli havalı 12/24 volt ürünler ise içerisinde kompresör, körük, makas, amortisör bulunan, çakmaklıktan, aküden vb. yerlerden alacağınız elektrik ile havayı kendisi üreten, harici kompresöre destek duymayan sistem.

bazı elektrikli havalı ve normal havalı ürünlerimize aynı zamanda standart amortisör haricinde + olarak darbe emici, sertlik ve yumuşaklığı ayarlanabilir amortisör vb. özellikler eklenebilerek daha rahat bir sürüş sağlanmaktadır.




Ürün ve Hizmetlerimiz Hakkında Daha Fazla Bilgi Almak İçin Bizi Arayabilirsiniz: